Cały obiekt do kupienia - 4 budynki magazynowo-usługowe Oferta:

Małopolskie, Piwniczna-Zdrój, Węgierska 180

Pokaż na mapie

nasza cena
3 900 000 zł

Rynek:
wtórny
Rok budowy:
2006
Stan lokalu:
gotowy
Cena za m2:
2 246,24
m2
Pow. użytkowa:
1736.23
m2
Umiejscowanie:
oddzielny obiekt
Przeznaczenie:
handlowy
Szukasz finansowana?
Kliknij aby dowiedzieć się więcej

Dostępne od: 2025-10-08


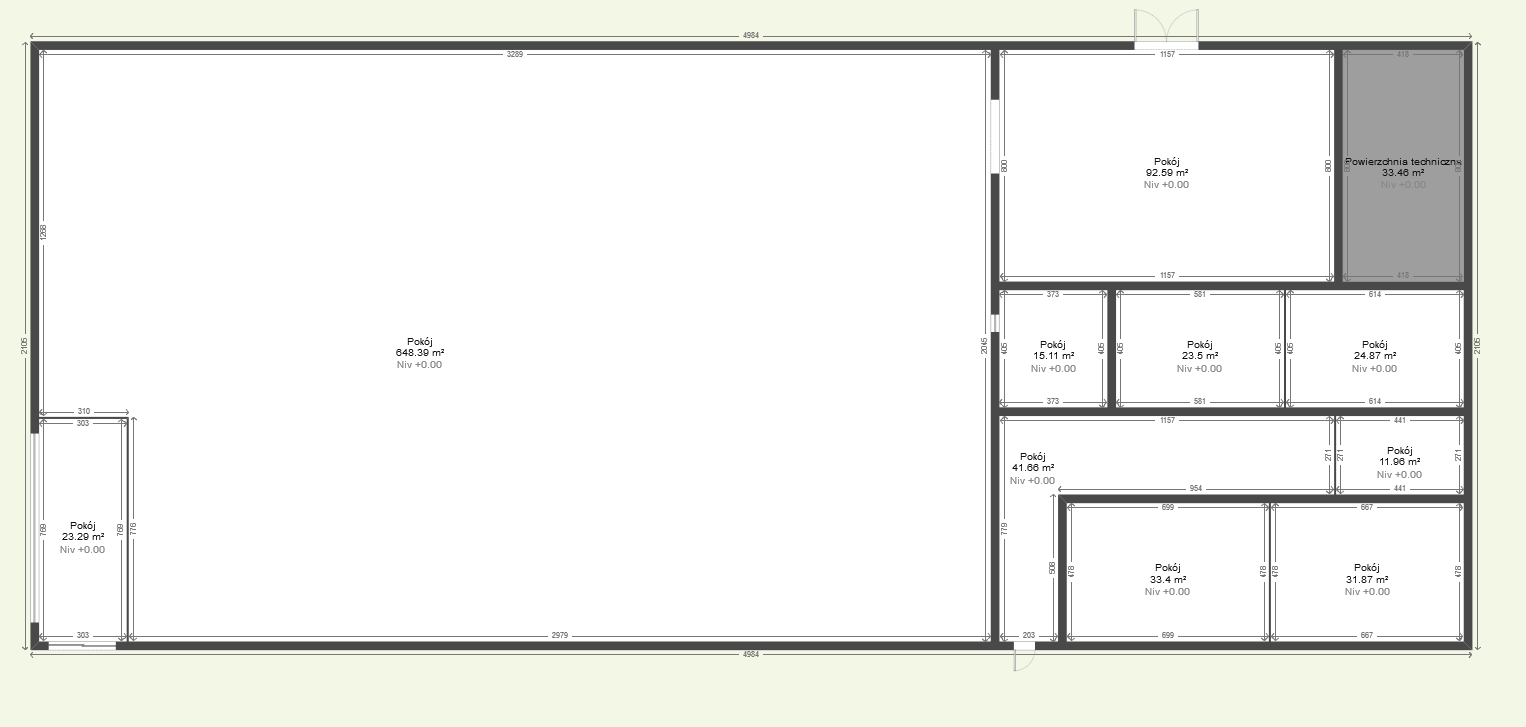
Do kupienia cały obiekt z 4 lokalami handlowy przystosowany do sklepów dyskontowych o powierzchni użytkowej 1736 m2 blisko obwodnicy na działce o wielkości 58 arów.

 

Na nieruchomości posadowiono:

  1. -Budynek handlowo - usługowy z częścią biurową, murowany, wolnostojący, parterowy, częściowo podpiwniczony. Obiekt kilkudziesięcioletni, po generalnym remoncie w 2006 roku. Budynek o powierzchni użytkowej 970,26 m2
  2. Budynek handlowo - usługowy z częścią magazynową , murowany, w części magazynowej murowano-blaszany, parterowy, niepodpiwniczony. Obiekt kilkudziesięcioletni o powierzchni użytkowej 645,27 m2
  3. Budynek handlowo - usługowy z częścią mieszkalną, murowany, wolnostojący, niepodpiwniczony. Obiekt kilkudziesięcioletni, po generalnym remoncie w 2017 roku, o powierzchni użytkowej 85,82 m2
  4. Budynek garażowo - gospodarczy, murowany, parterowy. Obiekt po generalnym remoncie w 2017 roku, o powierzchni użytkowej 34,88 m2
  5. Na działce nr 3188/1 zlokalizowano również zbiornik ppoż o pojemności 200 m3

 

Główny lokal handlowy 970, 26 m2 składa się z: głównej sali sprzedażowej, łazienki z szatniami, pomieszczenia socjalnego, pomieszczenia gospodarczego, pomieszczenia biurowego, Magazynu z dwoma komorami oraz mini rampy.

Budynek z częścią magazynową znajduje się z tyłu nieruchomości i posiada w części murowanej biura oraz powierzchnię handlową, pozostał część to magazyny.

Budynek z częścią mieszkalną posiada: sale sprzedaży, WC, kuchnię, łazienkę, kotłownie, pokój, salon z jadalnią, 

Ostatni Budynek garażowy posiada także pomieszczenie gospodarcze z wszelkimi podłączeniami pod łazienkę.

Działa posiada w planie zagospodarowania oznaczenie: UP2- tereny zabudowy usługowo - produkcyjnej. - szczegóły planu kliknij tutaj - Strona 57

 generalny remont budynku w 2006 roku

 

 

Nieruchomość posiada spory betonowy parking o powierzchni 934 m2.

 

 

Właściciel jest otwarty na negocjacje

 

Podana cena jest ceną netto należy doliczyć podatek VAT.

 

Biuro Nieruchomości

Eltegro Kamil Wachelka


Niniejsza oferta nie stanowi oferty w rozumieniu Kodeksu Cywilnego, a dane w niej zawarte mają jedynie charakter informacyjny i mogą ulec zmianie.
Według art. 179b z dnia 20 lipca 2017 r. o zmianie ustawy o gospodarce nieruchomościami oraz niektórych innych ustaw, pośrednictwo w obrocie nieruchomościami polega na odpłatnym wykonywaniu czynności zmierzających do zawarcia przez inne osoby umów: 1) nabycia lub zbycia praw do nieruchomości; 2)  nabycia lub zbycia spółdzielczego własnościowego prawa do lokalu; 3)  najmu lub dzierżawy nieruchomości lub ich części; 4)  innych niż określone w pkt. 1–3, których przedmiotem są prawa do nieruchomości lub ich części. Na tej podstawie biuro pobiera prowizję od transakcji najmu/sprzedaży ustalaną indywidualnie.
Na podstawie art. 13 rozporządzenia Parlamentu Europejskiego i Rady (UE) 2016/679 z 27.4.2016 r. w sprawie ochrony osób fizycznych w związku z przetwarzaniem danych osobowych (RODO), Informuję, że w związku z reakcją na niniejsze ogłoszenie kupna/sprzedaży nieruchomości, gromadzimy korespondencję, informację o rozmowach telefonicznych wraz z danymi, które mogą być uznane za dane osobowe. Szczegółowe informacje uzyska Pan/Pani na stronie internetowej biura nieruchomości Eltegro.

Ogrzewanie olejowe,
Media woda, prąd, kanalizacja,
Dodatkowe witryna, parking, klimatyzacja, ogrzewanie,
Kamil Wachelka

Kamil Wachelka

tel.: 505 193 009

biuro@eltegro.pl

 

Właściciel Biura Nieruchomości Eltegro.

Ukończył Wyższą Szkołę Biznesu - National Louis University w Nowym Sączu na kierunku Zarządzanie i Marketing.

Przez kilka lat pracował jako analityk finansowy w dużej firmie budowlanej. Jednocześnie zajmował się zarządzaniem nieruchomościami na rynku częstochowskim. W 2016 roku postanowił założyć własną agencję nieruchomości działającą w Małopolsce i na Śląsku.

 

sprawdź oferty Czytaj dalej
Propozycja dla ciebie

Chcesz sprzedać swoja nieruchomość? Napisz do nas!

Wszystkie prawa zastrzeżone 2026 dla Eltegro.pl
Projekt i wykonanie Desineo.pl